Selling

Apartment 759 SQM with 3 Bedrooms

SAR385,000

  • (0)
  • 7 Views
  • Sep 01, 2025
  • As Swaryee, Jeddah

Description

السلام عليكم ورحمة الله وبركاته اسعد الله اوقاتكم بكل خير عملائنا الكرام نضع بين أيديكم مشروعنا الجديد الواقع في حي الصواري 

  

3غرف ركينه المساحه 107مالسعر 385الف

 _

3غرف شارع المساحه 110م

السعر 375الف

_

3غرف خلفيه المساحه 110م

السعر 365الف

_

غرفتين شارع المساحه 80م

السعر 299الف 

_

غرفتين خلفية المساحه 80م

السعر280الف 

 

5غرف مدخلين 4دورات مياه غرفة خادمة غرفة ملابس غرفة سائق المساحه 222م السعر 630الف

_

4غرف مدخلين3دورات مياه غرفة خادمة غرفة ملابس غرفةسائق المساحه 195م السعر 550الف


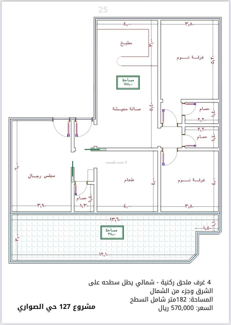
4غرف مدخلين ركينه 

3دورات مياه المساحه 182م السعر 570الف


ضمانات المشروع تصل إلى 25سنه


التواصل واستفسارات 0559625341

Overview
Property ID: 5764603
Type: Apartment
Bedrooms: 3
Bathrooms: 3
Write A Review
0 Reviews
0 out of 5
Contact Agency
Your experience on this site will be improved by allowing cookies.