للبيع

Villa 512.5 SQM Facing East on 20m Width Street

SAR2,400,000

  • (0)
  • 9 Views
  • سبتمبر 01, 2025
  • Aqraba', Al Jubaylah

الوصف

ياهلا ومرحبا حياكم الله عملاء شركة المعالم الاولى العقارية نسعد بتقديم عرض جديد لكم وهو كالتالي :

نوع العقار : فيلا عظم مليسه جاهزة للتشطيبات النهائية 

حي العقار : الجبيلة ( عقرباء )

مساحة العقار : 512.5 م

واجهة العقار : شرقي 

عمر العقار : جديد

عرض الشارع : 20 م


تفاصيل العقار : 

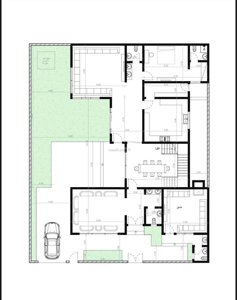
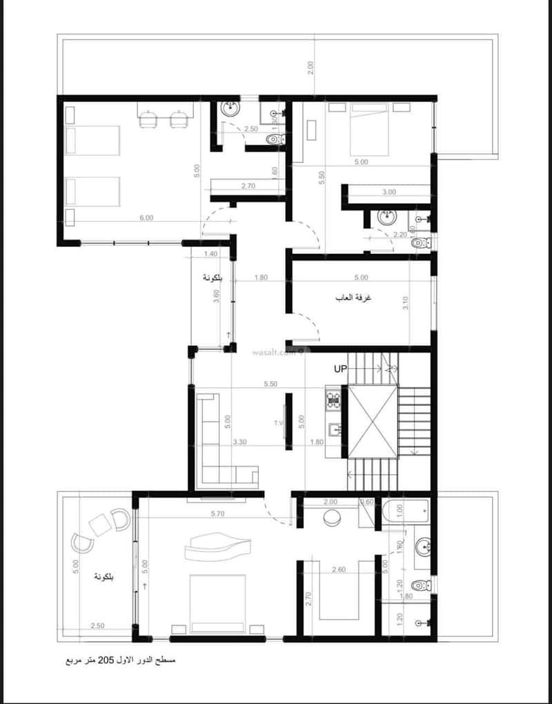
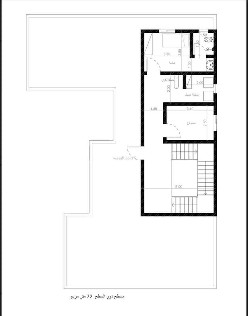
فيلا درج داخلي عبارة عن غرفة كبار سن ومجلس نساء ورجال وصالة ومشب ومطبخ معه مخزن مع غرفة عامله و 3 غرف نوم بالدور الاول من ضمنها غرفة ماستر كبيرة ، والسطح غرفتين بدورة مياه مشتركة وجلسه خارجية .

مميزات العقار :

بناء شخصي 

اشراف هندسي 

ضمانات سباكة وكهرب

تصوير مراحل البناء كامله 


سعر العقار : 2,400,000 ريال


للاستفسار والتواصل على الأرقام التالية :

0590213199

920014516

نظرة عامة
معرف الخاصية: 5765134
يكتب: Villa
غرف نوم: 6
الموقع
يشارك:
أكتب مراجعة
0 مراجعات
0 من 5
وكالة الاتصال
سيتم تحسين تجربتك على هذا الموقع من خلال السماح بملفات تعريف الارتباط.