للبيع

Apartment with 3 Bedrooms

SAR1,550,000

  • (0)
  • 14 Views
  • سبتمبر 01, 2025
  • As Salamah, Jeddah

الوصف

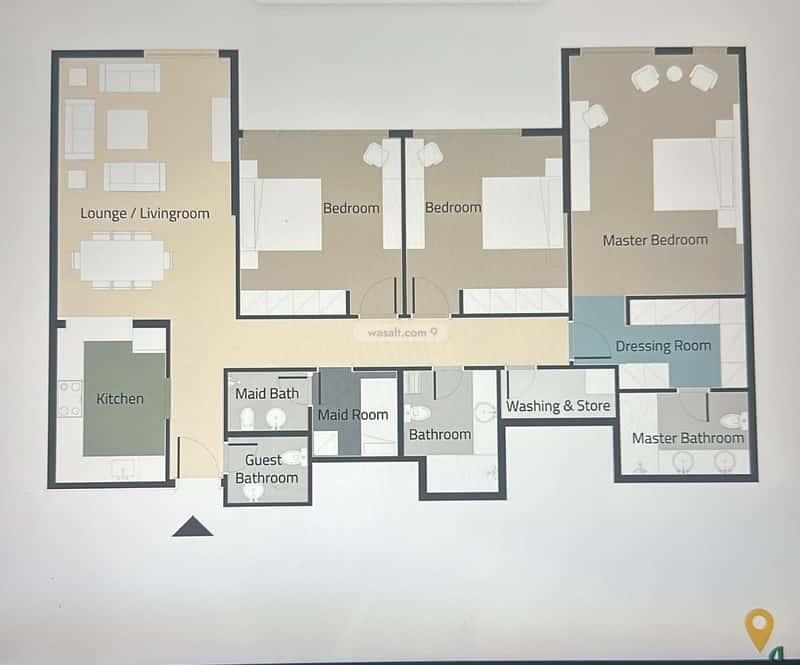
شقة فاخرة للبيع في داري كيو – مبنى A | شقة A203


للبيع شقة مميزة بموقع استراتيجي في مشروع داري كيو – مبنى A، تقع في الطابق الثاني، مطلة على شارع اليمامة، وتجمع بين الفخامة والراحة والتصميم العصري.


📐 المساحة:

163 م² (160.55 م² حسب الصك)


🛏️ المواصفات:


  • 3 غرف نوم، منها غرفة نوم رئيسية ماستر
  • 4 دورات مياه
  • صالة معيشة رحبة
  • مطبخ مجهز بالكامل
  • غرفة خادمة بحمام خاص
  • غرفة غسيل
  • نظام تكييف مركزي (مخفي – سبليت)



🔌 تشمل الأجهزة التالية:

غسالة – نشافة – فرن – بوتجاز كهربائي – شفاط مطبخ – ثلاجة – غسالة صحون

(تم احتساب قيمتها ضمن السعر الإجمالي)


💵 سعر البيع: 1,550,000 ريال

📅 قيمة الإيجار السنوي الأخير: 125,000 ريال

🏢 عمر العقار: 3 سنوات


📍 مزايا الموقع:


  • محلات تجارية في نفس المبنى تشمل:
    ☕ ستاربكس | 🛒 الدانوب | 💄 مركز تجميل نسائي


نظرة عامة
معرف الخاصية: 5760509
يكتب: Apartment
غرف نوم: 3
الموقع
يشارك:
أكتب مراجعة
0 مراجعات
0 من 5
وكالة الاتصال
سيتم تحسين تجربتك على هذا الموقع من خلال السماح بملفات تعريف الارتباط.